BrammoBlog Supplemental….Heavy on the mental.

9 10 2012

Blog 48–Where I share buried treasure found by Google Alerts…and by buried I mean “out of date, old and kinda useless.”

+++

Large Photo Blog coming tomorrow…lots of fun…but today I am just throwing up (eeeeeeeewwwwwwwwwww) some images I found on the internet….

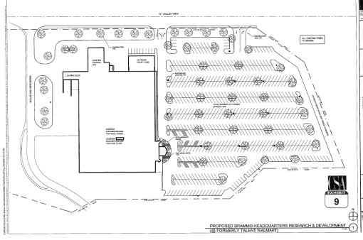
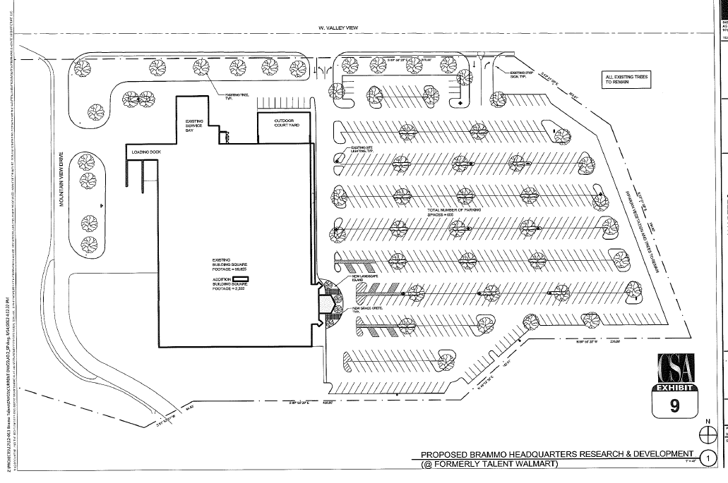
I suspect that the images are oldish and out of date…but they do show that Brammo is pushing forward with their huge Walmart site in Talent, Oregon. Whether this is the final design, I don’t know.

+++

Overhead drawing of current site.

+++

Overhead shot of Walmart and parking lot.

+++

Front view of remodeled Walmart into Brammo Headquarters.

+++

View of building from the opposite front angle.

+++

Click to access brammo3.1.pdf

+++

So forward motion happening. And the site will be huge (and the overhead shows maybe expansion space across the road). So they should have plenty of space to make lots and lots of bikes 🙂

+++

Till Next Time…

Gavin

For more info on Brammo, please visit: www.brammo.com
For more images, photos, discussions and all around Brammo goodness: visit, lurk and maybe join: www.brammoforum.com

+++

Teaser for Tomorrow….I have photos and stories from The Trinity Site, White Sands Monument and some Pueblo Ruins. Good stuff. Here is one, slightly altered to be current with the slightly delayed Balloon Jump in Roswell (120,000 feet above sea level…crazy stuff)

+++

+++


Actions

Information

Leave a comment